更多相關產品
- LG-GYSP01型城軌交通沙盤系統模型
- LG-GDYY02型城市軌道交通運營沙盤實訓系統
- LG-GDYY01型城市軌道交通運營管理實訓系統
- LG-GDQM02型城市軌道交通牽引供電沙盤模型
- LG-GDQ03型城市軌道交通電力牽引控制實驗臺
- LG-GDD03型城市軌道交通列車電氣回路系統教學平臺
- LG-GDM01型地鐵站臺屏蔽門系統模擬實驗實訓裝置
- LG-GDD01型地鐵站臺電源模擬實驗實訓臺
- LG-GDD02型城市軌道車輛輔助電源系統模擬實驗實訓臺
- LG-GDQ01型城市軌道車輛牽引控制系統模擬
- LG-GDQ02型城市軌道車輛牽引電動機實驗實訓裝置
- LG-GDZD02K型城市軌道交通車輛空氣制動模擬系統實驗臺
- LG-GDCZ系列城市軌道交通線路與站場實訓模型清單
- LG-GYXH01型鐵路信號基礎實訓設備
- LG-GDXH01型城市軌道交通道岔信號實訓系統實驗臺
- LGGD-S700K型提速道岔S700K轉轍機實訓演練平臺
- LG-DZDL03型電子電路安裝與調試實訓平臺
- LG-GSDQ01C型初級軌道電氣安裝調試實訓裝置
- LG-GSDQ02型軌道電氣控制安裝調試實訓裝置
- LGJT-DQ01型動車組(CRH3)電氣控制系統安裝與維修實訓
- LGGD-BAS01型 綜合監控系統實驗臺
- LG-GDM002型 屏蔽門控制系統實驗臺
- LGGD-ZM01型 軌道交通車站配電及照明控制系統實訓臺
- LGY-DK03A型電力機車(HXD2B)電氣控制系統安裝與維修實訓考核裝置
- LGY-DK02型動車組(CRH380B)電氣控制系統安裝與維修實訓考核裝置
- LGY-GD01A型動車組電氣控制檢修與調試實訓考核設備
- LGY-GD01C型城鐵列車電氣控制系統檢修與調試實訓考核裝置
- LGY-GD01B型城軌客車調試技能實訓考核裝置
LG-GDYY02型城市軌道交通運營沙盤實訓系統

一、系統概述
是為了使運輸、信號及車務培訓工作與地鐵未來發展相適應而提出的一套完整的模擬培訓解決方案,其核心目標是通過先進的計算機模擬技術為城市軌道交通培訓教學搭建一個以網絡為基礎、與實際操作環境相同,與軌道交通模型設備進行聯動的多媒體教學學習平臺。LG-GDYY02型 城市軌道交通運營沙盤實訓系統能夠使學生充分認識地鐵車站的構成及分類,認識城市軌道交通線路與站場的分類,認識道岔的分合及信號機的開放等,并掌握信號系統軟件操作方法、具備故障應對與解決能力。城市軌道交通運營沙盤實訓系統能充分體現控制中心調度員、車站值班員、場段調度等崗位的主要操作功能及特點,應充分滿足對學員的培訓需要。
二、系統技術說明
系統包括1套OCC控制中心ATS仿真系統、6套車站ATS仿真系統、1套車輛段計算機聯鎖仿真系統、1套ATP/ATO仿真系統、1套教員管理系統和1套實物沙盤組成。

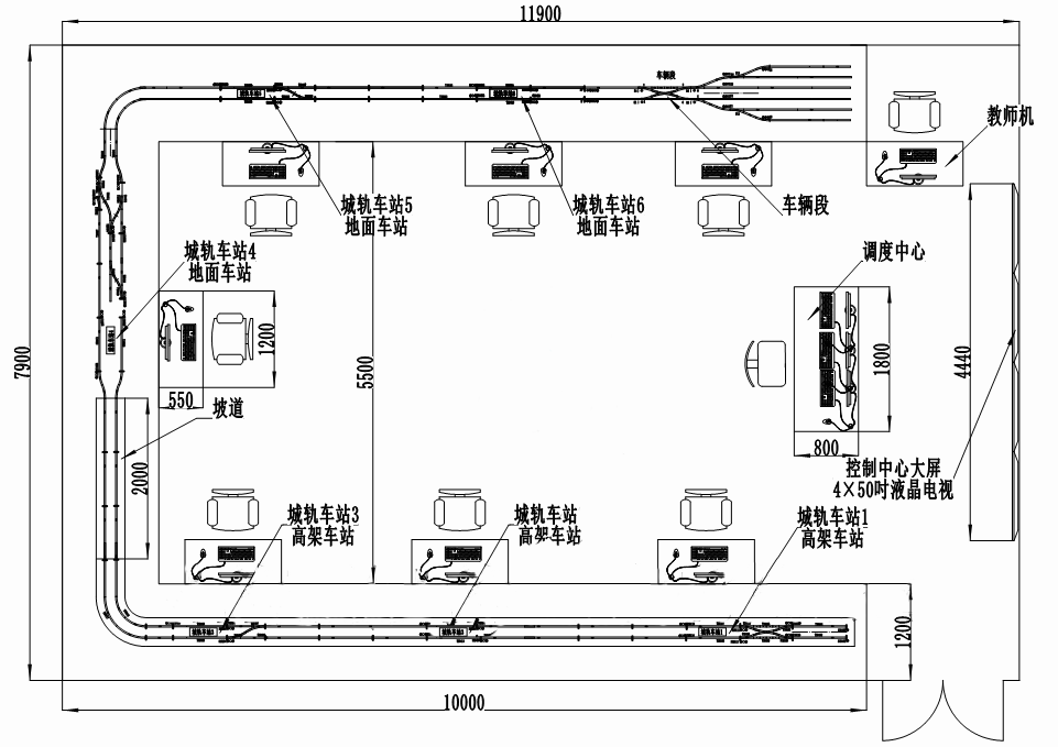
系統布局圖
二、系統技術說明
系統包括1套OCC控制中心ATS仿真系統、6套車站ATS仿真系統、1套車輛段計算機聯鎖仿真系統、1套ATP/ATO仿真系統、1套教員管理系統和1套實物沙盤組成。

系統布局圖
1、硬件模塊技術要求
1.1、線路要求
線路應按真實線路1:87比例制作,包含6個正線車站、1個車輛段。正線車站應設置4個聯鎖站、2個非聯鎖站,車輛段應設置4條存車線、1條洗車線、1條檢修線。
1.1、線路要求
線路應按真實線路1:87比例制作,包含6個正線車站、1個車輛段。正線車站應設置4個聯鎖站、2個非聯鎖站,車輛段應設置4條存車線、1條洗車線、1條檢修線。

1.2、沙盤臺體要求
沙盤臺體應采用輕鋼框架結構拼接,保證使用中不發生變形、生銹、開裂;臺架四周采用冷軋鋼板加工固定封板及檢查門;臺面四周采用不銹鋼封邊;臺面路基底層采用優質多層板制作,噴涂優質防火漆;臺面每平米能承受普通兩人的重量而不產生導致盤面損毀及變形,沙盤具備防鼠害功能。

1.3、站臺及站房要求
沙盤應設置高架車站模型、地面車站模型、地下車站模型及車輛段模型,車站模型應包括島式站臺和側式站臺等類型。
1.4、山水裝飾要求
沙盤盤面應放置公益性建筑模型、標志性建筑、街道、公園、花園、山體、湖泊等模型裝飾。
沙盤應設置高架車站模型、地面車站模型、地下車站模型及車輛段模型,車站模型應包括島式站臺和側式站臺等類型。
1.4、山水裝飾要求
沙盤盤面應放置公益性建筑模型、標志性建筑、街道、公園、花園、山體、湖泊等模型裝飾。

1.5、模型軌道、道岔及轉轍機要求
模型軌道、道岔及轉轍機應選用進口設備(1:87比例),保證模型列車運行的穩定性和通過性。模型道岔應具備正、反的定位檢測功能,確保道岔扳動后位置準確性。
1.6、模型信號機要求
模型信號機應按實物1:87比例進行制作,采用進口LED發光光源,使用壽命大于5年以上,可同時亮也可單獨控制,信號機的各燈位可單獨控制開/關。信號機包含調車信號機、列車信號機、阻擋信號機等類型。
1.7、模型列車需求
模型列車應采用1:87比例,每列列車模型包括一節動車和一節拖車,配裝與地鐵車輛外觀*的車殼。模型列車采用內部配裝鋰電池方式提供動力,連續工作時間不低于8小時。模型列車內部配裝無線通訊模塊,列車底部安裝讀卡器,能夠實時將模型列車實時位置等信息通過無線方式傳輸給控制中心。模型列車應具備不少于64級的調速功能。
1.8、模型設備控制系統要求
模型設備控制系統電源供電應采用安全電壓DC24V供電。系統結構為3U機箱標準,內部應由電源單元、主控單元、道岔控制單元、信號機控制單元等單元組成,內部各單元之間應采用CAN總線通訊連接,主控單元應具備TCP/IP網絡通訊接口,可以與OCC進行網絡對接。
1.9、遠程無線控車通信模塊需求
遠程無線控車通信模塊應能與模型列車進行無線雙向通信,該模塊能實現全沙盤范圍內的無線通信覆蓋,實時將列車狀態發送到控制中心,并接收控制中心的加速、減速、停止、啟動、換向運行等控制命令,可確保控制中心能夠實時與模型列車保持雙向通信。
1.10、大屏顯示終端要求
大屏顯示終端技術參數不低于:
屏幕尺寸:50英寸;
屏幕比例:16:9 ;
分辨率:1920*1080;
背光類型:LED。
1.11、計算機設備要求
計算機設備技術參數不低于:
CPU 型號:In 酷睿 i3
內存:4GB
硬盤:500GB
網絡通訊: TCP/IP 10/100BaseT
獨立1G顯卡
USB光電標準鍵盤和鼠標
顯示器:19英寸液晶寬屏
1.12、中心操作臺需求
控制中心調工作臺參數不低于:調度臺:1800×700×750(桌架采用矩形方管,桌板采用進口防火板,同色pvc封邊); 配套座椅:580×500×800mm(優質中密度板,防火貼面,優質封邊)。
1.13、車站操作臺需求
車站級ATS模擬系統及車輛段微機聯鎖仿真系統工作臺參數不低于:1200×600×750m(桌架采用矩形方管,桌板采用進口防火板);配套座椅:580×500×800mm(鋼木結構,優質中密度板,防火貼面,優質封邊)
2、軟件功能模塊要求
選擇典型的城市軌道交通典型線路和車輛段為藍本,利用計算機仿真技術,模擬正線ATS系統和車輛段系統的功能,系統的人機界面各個信號元素的顯示顏色與實物沙盤系統設備*;系統的操作界面,操作命令,操作對話信息以及操作過程應與現場設備操作*。
系統具有報警信息仿真功能,具備允許儲存列車基本運行圖/時刻表、運營計劃的調整和模擬運行圖的編制等功能。能將運行圖按不同種類存入數據庫內,以備隨時調用。系統運行前從機器內調出一個基本運行圖,經確認或修改后,即成為當日模擬列車的實施運行圖,各模擬列車按此圖在沙盤上運行,并在顯示終端上顯示。
系統以成熟的CBTC系統為原型,具備正常CBTC運行模式功能模擬,能模擬列車按創建的計劃運行圖進行多列車追蹤運行,能按照現場“控制中心-集中站-停車場-列車”的結構進行聯機,提供多崗位協同配合進行行車作業模擬演練,并具備ATO/ATP相關仿真功能,可模擬常見的系統故障現象。
2.1、控制中心ATS仿真系統
控制中心ATS系統應以真實地鐵信號系統(如卡斯柯、西門子)為原型進行仿真,人機界面上的站場圖結合沙盤線路進行設計,設備狀態顯示方式、操作功能應與真實系統工作站保持*,應能模擬列車運行圖/時刻表功能。
(1)控制中心ATS系統界面圖元顯示及相關操作功能
控制中心ATS系統應根據真實地鐵信號系統中心ATS界面實現仿真,顯示界面包括主框架界面(標題欄,菜單欄等)、主要ATS設備狀態顯示視圖、時間顯示視圖、列車運行信息顯示視圖、站場圖顯示視圖、告警信息和確認處理視圖等。
(2)控制中心ATS系統功能模擬應包括控制中心和集中站的ATS工作站的顯示和操作功能模擬,其界面顯示和操作方式、操作流程與現場*。系統包含但不限于如功能:
1)系統基本功能模擬
用戶登錄/注銷;
站遙控轉換;
區域選擇;
設備名稱顯示/隱藏;
站場圖放大/縮小;
顯示車體號/車次號;
報警信息顯示/隱藏;
列車詳細信息框顯示/隱藏;
站臺詳細信息框顯示/隱藏;
列車運行信息框顯示/隱藏;
調用在線運行圖軟件;
全屏顯示站場圖;
詳細設備狀態。
2)站臺控制功能
站臺扣車、取消扣車
站臺跳停、取消跳停
站臺提前發車
站臺停站時間
站臺詳細信息顯示
3)折返站臺控制功能
站臺扣車、取消扣車
站臺提前發車
站臺詳細信息顯示
4)列車跟蹤功能
定義車次號;
刪除車次號;
顯示列車信息;
移動車組號;
標記ATP切除、恢復;
設置目的地車。
5)軌道區段操作功能
區段封鎖、區段解封;
區段跟蹤切除、區段跟蹤激活;
設置臨時限速;
確認計軸有效。
6)道岔操作功能
道岔定操、道岔反操;
道岔封鎖、道岔解封;
區段跟蹤切除、區段跟蹤激活;
設置臨時限速;
確認計軸有效。
7)信號機操作功能
設置進路;
取消列車進路、取消調車進路;
設置自動通過進路、取消自動通過進路;
重開列車信號;
進路交人工控;
進路交自動控。
8)車站權限操作功能
請求中控;
請求站控。
9)出入庫計劃仿真功能
創建出入庫計劃;
刪除出入庫計劃;
更名出入庫計劃;
打開出入庫計劃;
當天出入庫計劃。
10)時刻表管理功能
下載當天計劃
下載基本計劃
下載當天實際圖
顯示當天計劃
顯示基本計劃
切換到中心控制系統
刪除當天計劃
創建當天計劃
計劃圖和實跡運行圖顯示
查詢進路控制狀態
修改
加車
更名
刪車
平移多輛車
11)報警信息及操作信息功能模擬
在故障模擬時,能顯示相應故障的情況的報警信息;
在操作部分功能時,能顯示能顯示相關操作信息。
12)按鍵
自動折返按鈕;
變通策略。
2.2、車站ATS仿真系統
控制中心ATS系統應以真實地鐵信號系統(如卡斯柯、西門子)為原型進行仿真,顯示界面包括主框架界面(標題欄,菜單欄等)、主要ATS設備狀態顯示視圖、時間顯示視圖、列車運行信息顯示視圖、站場圖顯示視圖、告警信息和確認處理視圖等。系統包含但不限于如功能:
(1)系統基本功能模擬
用戶登錄/注銷;
站遙控轉換;
區域選擇;
設備名稱顯示/隱藏;
站場圖放大/縮小;
顯示車體號/車次號;
報警信息顯示/隱藏;
列車詳細信息框顯示/隱藏;
站臺詳細信息框顯示/隱藏;
查看相鄰連鎖站;
全屏顯示站場圖;
詳細設備狀態。
(2)站臺及折返站臺控制功能
站臺扣車、取消扣車;
站臺提前發車;
站臺詳細信息顯示。
(3)區段操作功能
區段封鎖、區段解封;
區段跟蹤切除、區段跟蹤激活。
(4)道岔操作功能
道岔定操、道岔反操;
道岔封鎖、道岔解封;
道岔單鎖、道岔單解;
(5)信號機操作功能
設置進路;
取消列車進路、取消調車進路;
設置自動通過進路、取消自動通過進路;
重開列車信號;
封鎖、解封;
進路交人工控;
進路交自動控;
查詢進路控制狀態。
(6)車站權限操作功能
緊急站控;
請求中控;
請求站控;
非請求站控。
(7)工具欄按鈕功能仿真
進路建立功能;
總取消功能;
信號重開功能;
總人解功能;
引導進路功能;
引導總鎖功能;
道岔總定功能;
道岔總反功能;
道岔單鎖功能;
道岔解鎖功能;
區故解功能。
2.3、車輛段計算機聯鎖仿真系統
計算機聯鎖仿真系統由仿真操作表示機和仿真聯鎖運算控制機組成。
計算機聯鎖仿真系統包含但不限于如功能:
辦理列車進路;
調車進路;
引導進路;
推送進路;
引導總鎖;
單操道岔;
單鎖道岔;
封閉道岔;
取消進路;
人工解鎖進路;
區段故障解鎖;
站場間接發車作業等微機聯鎖的各種功能以及各種常見故障的仿真;
系統通過機車控制系統對沙盤上的機車進行控制。
2.4、ATP/ATO仿真系統
ATP/ATO子系統功能模擬包括軌旁ATP/ATO、車載ATP/ATO及集中站聯鎖的功能,其模擬的功能邏輯和相應的控制功能能在列車運行模擬過程中完全充分體現,包括:
自動檢測列車位置;
車地信息傳輸;
列車運行間隔控制和超速防護;
測速功能;
列車自動折返;
列車啟動控制;
進站定位停車;
列車區間運行時分控制;
列車運行自動調整。
2.5、大屏幕顯示仿真系統
系統包含但不限于如下功能:
具備顯示全線路軌道、信號機、道岔狀態;
監視列車的運行和車次編號,軌道占用、出清等顯示狀態信息;
能同時對線路上所有的設備和列車位置信息進行監視。
2.6、教員管理系統
系統以學生實訓為核心,提供教師教學、學生自學等輔助功能。教學過程中由教員使用,監控所有學員機狀態和設置故障,主要包含以下功能:
教員登錄/注銷;
系統同步時間;
其他系統終端遠程關閉;
終端信息顯示/隱藏;
故障信息顯示/隱藏;
學員信息管理界面;
授權人控小車權限;
全線/場/段 監控;
故障設置;
系統管理;
課程設置與發布。
三、系統設備清單
模型軌道、道岔及轉轍機應選用進口設備(1:87比例),保證模型列車運行的穩定性和通過性。模型道岔應具備正、反的定位檢測功能,確保道岔扳動后位置準確性。
1.6、模型信號機要求
模型信號機應按實物1:87比例進行制作,采用進口LED發光光源,使用壽命大于5年以上,可同時亮也可單獨控制,信號機的各燈位可單獨控制開/關。信號機包含調車信號機、列車信號機、阻擋信號機等類型。
1.7、模型列車需求
模型列車應采用1:87比例,每列列車模型包括一節動車和一節拖車,配裝與地鐵車輛外觀*的車殼。模型列車采用內部配裝鋰電池方式提供動力,連續工作時間不低于8小時。模型列車內部配裝無線通訊模塊,列車底部安裝讀卡器,能夠實時將模型列車實時位置等信息通過無線方式傳輸給控制中心。模型列車應具備不少于64級的調速功能。
1.8、模型設備控制系統要求
模型設備控制系統電源供電應采用安全電壓DC24V供電。系統結構為3U機箱標準,內部應由電源單元、主控單元、道岔控制單元、信號機控制單元等單元組成,內部各單元之間應采用CAN總線通訊連接,主控單元應具備TCP/IP網絡通訊接口,可以與OCC進行網絡對接。
1.9、遠程無線控車通信模塊需求
遠程無線控車通信模塊應能與模型列車進行無線雙向通信,該模塊能實現全沙盤范圍內的無線通信覆蓋,實時將列車狀態發送到控制中心,并接收控制中心的加速、減速、停止、啟動、換向運行等控制命令,可確保控制中心能夠實時與模型列車保持雙向通信。
1.10、大屏顯示終端要求
大屏顯示終端技術參數不低于:
屏幕尺寸:50英寸;
屏幕比例:16:9 ;
分辨率:1920*1080;
背光類型:LED。
1.11、計算機設備要求
計算機設備技術參數不低于:
CPU 型號:In 酷睿 i3
內存:4GB
硬盤:500GB
網絡通訊: TCP/IP 10/100BaseT
獨立1G顯卡
USB光電標準鍵盤和鼠標
顯示器:19英寸液晶寬屏
1.12、中心操作臺需求
控制中心調工作臺參數不低于:調度臺:1800×700×750(桌架采用矩形方管,桌板采用進口防火板,同色pvc封邊); 配套座椅:580×500×800mm(優質中密度板,防火貼面,優質封邊)。
1.13、車站操作臺需求
車站級ATS模擬系統及車輛段微機聯鎖仿真系統工作臺參數不低于:1200×600×750m(桌架采用矩形方管,桌板采用進口防火板);配套座椅:580×500×800mm(鋼木結構,優質中密度板,防火貼面,優質封邊)
2、軟件功能模塊要求
選擇典型的城市軌道交通典型線路和車輛段為藍本,利用計算機仿真技術,模擬正線ATS系統和車輛段系統的功能,系統的人機界面各個信號元素的顯示顏色與實物沙盤系統設備*;系統的操作界面,操作命令,操作對話信息以及操作過程應與現場設備操作*。
系統具有報警信息仿真功能,具備允許儲存列車基本運行圖/時刻表、運營計劃的調整和模擬運行圖的編制等功能。能將運行圖按不同種類存入數據庫內,以備隨時調用。系統運行前從機器內調出一個基本運行圖,經確認或修改后,即成為當日模擬列車的實施運行圖,各模擬列車按此圖在沙盤上運行,并在顯示終端上顯示。
系統以成熟的CBTC系統為原型,具備正常CBTC運行模式功能模擬,能模擬列車按創建的計劃運行圖進行多列車追蹤運行,能按照現場“控制中心-集中站-停車場-列車”的結構進行聯機,提供多崗位協同配合進行行車作業模擬演練,并具備ATO/ATP相關仿真功能,可模擬常見的系統故障現象。
2.1、控制中心ATS仿真系統
控制中心ATS系統應以真實地鐵信號系統(如卡斯柯、西門子)為原型進行仿真,人機界面上的站場圖結合沙盤線路進行設計,設備狀態顯示方式、操作功能應與真實系統工作站保持*,應能模擬列車運行圖/時刻表功能。
(1)控制中心ATS系統界面圖元顯示及相關操作功能
控制中心ATS系統應根據真實地鐵信號系統中心ATS界面實現仿真,顯示界面包括主框架界面(標題欄,菜單欄等)、主要ATS設備狀態顯示視圖、時間顯示視圖、列車運行信息顯示視圖、站場圖顯示視圖、告警信息和確認處理視圖等。
(2)控制中心ATS系統功能模擬應包括控制中心和集中站的ATS工作站的顯示和操作功能模擬,其界面顯示和操作方式、操作流程與現場*。系統包含但不限于如功能:
1)系統基本功能模擬
用戶登錄/注銷;
站遙控轉換;
區域選擇;
設備名稱顯示/隱藏;
站場圖放大/縮小;
顯示車體號/車次號;
報警信息顯示/隱藏;
列車詳細信息框顯示/隱藏;
站臺詳細信息框顯示/隱藏;
列車運行信息框顯示/隱藏;
調用在線運行圖軟件;
全屏顯示站場圖;
詳細設備狀態。
2)站臺控制功能
站臺扣車、取消扣車
站臺跳停、取消跳停
站臺提前發車
站臺停站時間
站臺詳細信息顯示
3)折返站臺控制功能
站臺扣車、取消扣車
站臺提前發車
站臺詳細信息顯示
4)列車跟蹤功能
定義車次號;
刪除車次號;
顯示列車信息;
移動車組號;
標記ATP切除、恢復;
設置目的地車。
5)軌道區段操作功能
區段封鎖、區段解封;
區段跟蹤切除、區段跟蹤激活;
設置臨時限速;
確認計軸有效。
6)道岔操作功能
道岔定操、道岔反操;
道岔封鎖、道岔解封;
區段跟蹤切除、區段跟蹤激活;
設置臨時限速;
確認計軸有效。
7)信號機操作功能
設置進路;
取消列車進路、取消調車進路;
設置自動通過進路、取消自動通過進路;
重開列車信號;
進路交人工控;
進路交自動控。
8)車站權限操作功能
請求中控;
請求站控。
9)出入庫計劃仿真功能
創建出入庫計劃;
刪除出入庫計劃;
更名出入庫計劃;
打開出入庫計劃;
當天出入庫計劃。
10)時刻表管理功能
下載當天計劃
下載基本計劃
下載當天實際圖
顯示當天計劃
顯示基本計劃
切換到中心控制系統
刪除當天計劃
創建當天計劃
計劃圖和實跡運行圖顯示
查詢進路控制狀態
修改
加車
更名
刪車
平移多輛車
11)報警信息及操作信息功能模擬
在故障模擬時,能顯示相應故障的情況的報警信息;
在操作部分功能時,能顯示能顯示相關操作信息。
12)按鍵
自動折返按鈕;
變通策略。
2.2、車站ATS仿真系統
控制中心ATS系統應以真實地鐵信號系統(如卡斯柯、西門子)為原型進行仿真,顯示界面包括主框架界面(標題欄,菜單欄等)、主要ATS設備狀態顯示視圖、時間顯示視圖、列車運行信息顯示視圖、站場圖顯示視圖、告警信息和確認處理視圖等。系統包含但不限于如功能:
(1)系統基本功能模擬
用戶登錄/注銷;
站遙控轉換;
區域選擇;
設備名稱顯示/隱藏;
站場圖放大/縮小;
顯示車體號/車次號;
報警信息顯示/隱藏;
列車詳細信息框顯示/隱藏;
站臺詳細信息框顯示/隱藏;
查看相鄰連鎖站;
全屏顯示站場圖;
詳細設備狀態。
(2)站臺及折返站臺控制功能
站臺扣車、取消扣車;
站臺提前發車;
站臺詳細信息顯示。
(3)區段操作功能
區段封鎖、區段解封;
區段跟蹤切除、區段跟蹤激活。
(4)道岔操作功能
道岔定操、道岔反操;
道岔封鎖、道岔解封;
道岔單鎖、道岔單解;
(5)信號機操作功能
設置進路;
取消列車進路、取消調車進路;
設置自動通過進路、取消自動通過進路;
重開列車信號;
封鎖、解封;
進路交人工控;
進路交自動控;
查詢進路控制狀態。
(6)車站權限操作功能
緊急站控;
請求中控;
請求站控;
非請求站控。
(7)工具欄按鈕功能仿真
進路建立功能;
總取消功能;
信號重開功能;
總人解功能;
引導進路功能;
引導總鎖功能;
道岔總定功能;
道岔總反功能;
道岔單鎖功能;
道岔解鎖功能;
區故解功能。
2.3、車輛段計算機聯鎖仿真系統
計算機聯鎖仿真系統由仿真操作表示機和仿真聯鎖運算控制機組成。
計算機聯鎖仿真系統包含但不限于如功能:
辦理列車進路;
調車進路;
引導進路;
推送進路;
引導總鎖;
單操道岔;
單鎖道岔;
封閉道岔;
取消進路;
人工解鎖進路;
區段故障解鎖;
站場間接發車作業等微機聯鎖的各種功能以及各種常見故障的仿真;
系統通過機車控制系統對沙盤上的機車進行控制。
2.4、ATP/ATO仿真系統
ATP/ATO子系統功能模擬包括軌旁ATP/ATO、車載ATP/ATO及集中站聯鎖的功能,其模擬的功能邏輯和相應的控制功能能在列車運行模擬過程中完全充分體現,包括:
自動檢測列車位置;
車地信息傳輸;
列車運行間隔控制和超速防護;
測速功能;
列車自動折返;
列車啟動控制;
進站定位停車;
列車區間運行時分控制;
列車運行自動調整。
2.5、大屏幕顯示仿真系統
系統包含但不限于如下功能:
具備顯示全線路軌道、信號機、道岔狀態;
監視列車的運行和車次編號,軌道占用、出清等顯示狀態信息;
能同時對線路上所有的設備和列車位置信息進行監視。
2.6、教員管理系統
系統以學生實訓為核心,提供教師教學、學生自學等輔助功能。教學過程中由教員使用,監控所有學員機狀態和設置故障,主要包含以下功能:
教員登錄/注銷;
系統同步時間;
其他系統終端遠程關閉;
終端信息顯示/隱藏;
故障信息顯示/隱藏;
學員信息管理界面;
授權人控小車權限;
全線/場/段 監控;
故障設置;
系統管理;
課程設置與發布。
三、系統設備清單
|
序號
|
名稱
|
設備名稱
|
主要技術參數
|
數量
|
單位
|
|
1
|
城市軌道交通運營沙盤實訓系統硬件
|
線路
|
線路應按真實線路1:87比例制作,包含6個正線車站、1個車輛段。正線車站應設置4個聯鎖站、2個非聯鎖站,車輛段應設置4條存車線、1條洗車線、1條檢修線。
|
1
|
套
|
|
2
|
沙盤臺體
|
沙盤臺體應采用輕鋼框架結構拼接,保證使用中不發生變形、生銹、開裂;臺架四周采用冷軋鋼板加工固定封板及檢查門;臺面四周采用不銹鋼封邊;臺面路基底層采用優質多層板制作,噴涂優質防火漆;臺面每平米能承受普通兩人的重量而不產生導致盤面損毀及變形,沙盤具備防鼠害功能。
|
1
|
套
|
|
|
3
|
模型軌道、道岔、轉轍機
|
模型軌道、道岔及轉轍機應選用進口設備(1:87比例),保證模型列車運行的穩定性和通過性。模型道岔應具備正、反的定位檢測功能,確保道岔扳動后位置準確性。
|
1
|
套
|
|
|
4
|
模型信號機
|
模型信號機應按實物1:87比例進行制作,采用進口LED發光光源,使用壽命大于5年以上,可同時亮也可單獨控制,信號機的各燈位可單獨控制開/關。信號機包含調車信號機、列車信號機、阻擋信號機等類型。
|
1
|
套
|
|
|
5
|
模型山水等裝飾
|
沙盤盤面應放置公益性建筑模型、標志性建筑、街道、公園、花園、山體、湖泊等模型裝飾。
|
|
|
|
|
6
|
模型列車
|
模型列車應采用1:87比例,每列列車模型包括一節動車和一節拖車,配裝與地鐵車輛外觀*的車殼。模型列車采用內部配裝鋰電池方式提供動力,連續工作時間不低于8小時。模型列車內部配裝無線通訊模塊,列車底部安裝讀卡器,能夠實時將模型列車實時位置等信息通過無線方式傳輸給控制中心。模型列車應具備不少于64級的調速功能。
|
6
|
列
|
|
|
7
|
模型設備控制系統
|
模型設備控制系統電源供電應采用安全電壓DC24V供電。系統結構為3U機箱標準,內部應由電源單元、主控單元、道岔控制單元、信號機控制單元等單元組成,內部各單元之間應采用CAN總線通訊連接,主控單元應具備TCP/IP網絡通訊接口,可以與OCC進行網絡對接。
|
1
|
套
|
|
|
8
|
遠程無線控車通信模塊
|
遠程無線控車通信模塊應能與模型列車進行無線雙向通信,該模塊能實現全沙盤范圍內的無線通信覆蓋,實時將列車狀態發送到控制中心,并接收控制中心的加速、減速、停止、啟動、換向運行等控制命令,可確保控制中心能夠實時與模型列車保持雙向通信。
|
1
|
套
|
|
|
9
|
模型車輛位置檢測系統
|
實現模型列車讀卡器讀取模擬地面應答器方式判斷車輛位置檢測。
|
1
|
套
|
|
|
10
|
控制中心工作臺
|
調度臺:2800×700×750(桌架采用矩形方管,桌板采用進口防火板,同色pvc封邊);
配套座椅:580×500×800mm(優質中密度板,防火貼面,優質封邊)。 |
1
|
套
|
|
|
11
|
通訊和數據服務器
|
產品類別:塔式
CPU型號:Xeon E3-1220 硬盤容量:1TB 網絡控制器:雙千兆網卡 鍵盤:USB光電標準鍵盤 鼠標:USB光電鼠標 顯示器:17英寸液晶寬屏 |
1
|
套
|
|
|
12
|
中心ATS仿真系統計算機
|
CPU 型號:In 酷睿 i3
內存:4GB 硬盤:500GB 網絡通訊: TCP/IP 10/100BaseT 獨立1G顯卡 USB光電標準鍵盤和鼠標 顯示器:19英寸液晶寬屏 |
1
|
套
|
|
|
13
|
大屏顯示控制計算機
|
CPU 型號:In 酷睿 i3
內存:4GB 硬盤:500GB 網絡通訊: TCP/IP 10/100BaseT 顯卡:支持四屏顯示 鍵鼠:USB光電標準鍵盤和鼠標 |
1
|
臺
|
|
|
14
|
大屏顯示系統終端
|
設備類型:超窄邊液晶電視;
屏幕尺寸:50英寸; 屏幕比例:16:9 ; 分辨率:1920*1080; 背光類型:LED。 注:含安裝支架。 |
4
|
臺
|
|
|
15
|
教員管理系統工作臺
|
1200×600×750m(桌架采用矩形方管,桌板采用進口防火板);
配套座椅:580×500×800mm(鋼木結構,優質中密度板,防火貼面,優質封邊) |
1
|
套
|
|
|
16
|
教員管理系統計算機
|
CPU 型號:In 酷睿 i5
內存容量:4GB 硬盤容量:500GB 顯卡:獨立1G顯卡 顯示器:19英寸液晶寬屏 |
1
|
套
|
|
|
17
|
車站級ATS模擬系統及車輛段微機聯鎖仿真系統工作臺
|
1200×600×750m(桌架采用矩形方管,桌板采用進口防火板);
配套座椅:580×500×800mm(鋼木結構,優質中密度板,防火貼面,優質封邊) |
7
|
套
|
|
|
18
|
車站、車輛段計算機
|
CPU 型號:In 酷睿 i3
內存:4GB 硬盤:500GB 網絡通訊: TCP/IP 10/100BaseT 顯卡:獨立1G顯卡 鍵鼠:USB光電標準鍵盤和鼠標 顯示器:19英寸液晶寬屏 |
7
|
套
|
|
|
19
|
標準機柜
|
類型:網絡機柜;
容量:22U; 外觀參數:高度1166mm×寬度600mm×深度600mm。 |
1
|
套
|
|
|
20
|
網絡交換機
|
產品類型:快速以太網交換機
傳輸速率:10/100Mbps 端口數量:16個 |
1
|
臺
|
|
|
21
|
電腦音箱
|
音箱系統:2.0聲道
音頻接口:3.5mm音頻接口 |
1
|
套
|
|
|
22
|
網絡布線及施工
|
各類線纜及耗材,符合行業標準,滿足系統需求。
|
1
|
套
|
|
|
23
|
城市軌道交通運營沙盤實訓系統軟件 |
中心ATS仿真系統
|
仿真真實地鐵中心ATS軟件(HMI和CLOW);仿真卡斯柯型中心ATS(CATS)軟件。
|
1
|
套
|
|
24
|
ATP/ATO仿真系統
|
ATP/ATO子系統功能模擬包括軌旁ATP/ATO、車載ATP/ATO及集中站聯鎖的功能,具有自動檢測列車位置、車地信息傳輸、列車運行間隔控制和超速防護、測速功能、列車自動折返、列車啟動控制、進站定位停車、列車區間運行時分控制、列車運行自動調整等功能。
|
1
|
套
|
|
|
25
|
大屏顯示仿真系統
|
顯示全線路軌道、信號機、道岔狀態;監視列車的運行和車次編號,軌道占用、出清等顯示狀態信息。
|
1
|
套
|
|
|
26
|
教員管理系統
|
系統管理、學員信息管理、課程設置與發布、各車站狀態監控和故障設置等。
|
1
|
套
|
|
|
27
|
車站ATS系統
|
仿真真實地鐵車站ATS(LOW)軟件;仿真卡斯柯型車站ATS(LATS)軟件。
|
6
|
套
|
|
|
28
|
車輛段計算機聯鎖仿真系統
|
計算機聯鎖仿真系統功能包含不限于:辦理列車進路、調車進路、引導進路、推送進路、引導總鎖、單操道岔、單鎖道岔、封閉道岔、取消進路、人工解鎖進路、區段故障解鎖、站場間接發車作業等微機聯鎖的各種功能以及各種常見故障的仿真、系統通過機車控制系統對沙盤上的機車進行控制。
|
1
|
套
|



